Schieben Sie bis zu 1 m VVZ-A001
Rutsche bis zu 1 m
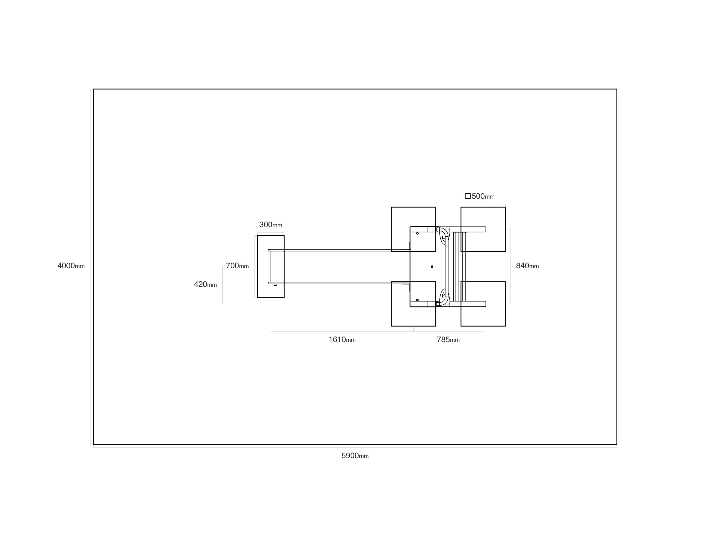
Zertifizierter, wartungsfreier A-förmiger Turm mit geriffeltem Ausgang und Rutsche. Ein Basisset, das auch auf kleinem Raum Platz findet und dennoch ein vollwertiges Spielgerät bietet. Die Stahlkonstruktion ist dank Verzinkung und langlebiger Pulverbeschichtung witterungsbeständig. Die verwendeten Materialien HPL und HDPE sind chemikalienbeständig, UV-beständig, farbecht, ungiftig, recycelbar und bruchfest. Es besteht keine Verletzungsgefahr durch scharfe Kanten oder Splitter. Alle Verbindungen sind aus Edelstahl und mit Kunststoffkappen versehen, um Langlebigkeit und Sicherheit zu erhöhen.

HPL - Hochdrucklaminate

Schaukeln und Wippen

Schiebetüren

Ja, wir bieten Transportdienste in der gesamten Slowakei an.
Alle Elemente unseres Angebots sind schlüsselfertig erhältlich. Wenn Sie jedoch Interesse haben und Kosten sparen möchten, können wir Ihnen eine Fundament- und Montagezeichnung zur Verfügung stellen, damit Sie die Elemente selbst montieren können.
Unsere Produkte werden in unserer Halle in Trenčín entworfen, entwickelt, getestet und hergestellt.
































.png&w=200&h=200)















